
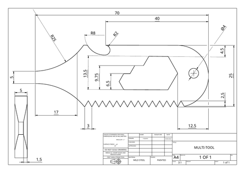
You are buying a full package to deliver a scheme of work that we use for year 9s in Engineering for a Steel Multi-Tool
This involves:
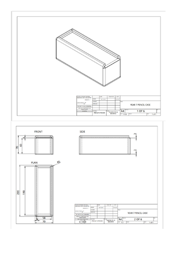
- How to draw in 2D and isometric using drawing boards and to BS8888 standard
- How to use OnShape 3D modelling software (free) including videos for each task so students can work at their own pace to complete isometric, assembly, and orthographic drawings.
- Tips to complete the practical work
You will be getting:
- Scheme of work with differentiation provided
- 41 Lessons via Prezi (GO TO THE READ ME DOCUMENT)
- Working drawings for the practical
- Worksheets
- Homework Sheets & mark scheme
- Assessment stickers and next step tasks
- How to step by step guides to help build independence
- Multiple private YouTube links to videos on how to complete the OnShape tasks
Something went wrong, please try again later.
This resource hasn't been reviewed yet
To ensure quality for our reviews, only customers who have purchased this resource can review it
Report this resourceto let us know if it violates our terms and conditions.
Our customer service team will review your report and will be in touch.
£10.00